kitchen with an island bar, stainless steel appliances, white cabinets, a nice backsplash, shiny floors, and white countertops
Portrait of successful businessman standing on balcony and looking at city view

BRIGHT IDEAS, BRILLIANT FLATS FOR YOUR LIFESTYLE

Dallas Power and Light offers a variety of spacious and versatile floor plans to suit your lifestyle needs. Each flat is thoughtfully designed with attention to detail, providing you with ample space, natural light, and modern finishes. Whether you desire a cozy one bedroom or a multi-bedroom loft, our floor plans offer the perfect canvas for you to create your urban sanctuary.

Filter by Apartment Type

 

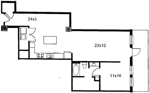
B33

2 Bed | 2 Bath | 1,709 SQ. FT.
B33 Floor Plan The two-level floor plan includes an entry area, a kitchen, living and dining area, two bedrooms, two baths, and a terrace. The entry door enters into the top of an entry area. On the left side of the entry area is a closet with a door. On the right side, double doors lead to a washer and dryer. To the bottom left of the entry area is a 23-foot by 21-foot kitchen, living and dining area with an island. The kitchen is above and the living and dining area is below. Three windows are on the left wall and four windows are on the bottom wall. At the bottom right of the kitchen, a hall extends to the right with two windows on the bottom wall. At the top of the hall, a door leads to a bath with a tub. On the left side of the bath, a door leads to a closet. At the right side of the hall, a door leads to an 11-foot by 13-foot bedroom with two windows on the bottom wall. Stairs on the right side of the living area lead to the second level. At the top of the stairs, a hall extends to the right. The hall has two windows and a door to the terrace on the bottom wall and a window on the left wall. On the top of the hall, double doors lead to a 29-foot by 17-foot L-shaped bedroom. At the top right of the bedroom, double doors lead to a closet. To the left of the closet, a door leads to a bath with a shower with a door. The bedroom has a window on the lower right wall, on the right wall, and on the left wall. The enormous terrace is U-shaped and extends from mid-way up the right wall of the second level, across the entirety of the lower wall of the second level, and then slightly farther than the left wall of the second level. Stairs lead downward from the terrace below the bottom wall to the section of the terrace to the left of the left wall of the apartment. Midway up the left wall, stairs lead up to an upper section of the terrace. Two columns are in the kitchen.
call for pricing

B35

2 Bed | 2 Bath | 1,784 SQ. FT.

C15

2 Bed | 2 Bath | 1,577 SQ. FT.
C15 Floor Plan The two-level floor plan includes a kitchen, living and dining area, two bedrooms, two baths, and a terrace. The entry door opens to the left side of an entry area. At the top of the entry area is a closet with a door. Below the entry area is a kitchen with an island. To the right of the kitchen is a 14-foot by 16-foot living and dining area with two windows on the right wall. At the bottom of the living and dining area is a closet with a door. On the bottom right of the living and dining area, a hall extends downward. On the left side of the hall, double doors lead to a washer and dryer. At the bottom of the hall, an open doorway leads to a 12-foot by 11-foot bedroom with one window on the right wall. There is no door on the bedroom. At the top of the bedroom, a door leads to a bath with a tub. On the left side of the bedroom is a closet with a door. Stairs in the entry area lead to the second floor. At the top of the stairs is an L-shaped hall. At the bottom of the hall is a 27-foot by 14-foot bedroom with four windows on the lower wall and double doors to the terrace on the right wall. There is no door on the bedroom. In the upper left of the bedroom, a door leads to a bath with a shower. On the left side of the bedroom is a closet with a door. On the bottom of the bedroom is a second closet with no door. The bedroom has a sink and a refrigerator. The enormous L-shaped terrace extends along the entire lower wall of the second level and along most of the right wall. Stairs lead up to the terrace along the right wall and a second set of stairs also lead up to the section of terrace on the left side of the lower wall.
call for pricing

C16

1 Bed | 2 Bath | 1,252 SQ. FT.
C16 Floor Plan The two-level floor plan includes an entry, kitchen, living and dining area, a bedroom, two baths, an additional room, and a balcony. The entry door leads into the bottom left of the entry space. To the left of the entry door is a closet with a door. To the right of the entry space is a kitchen with an island. A window is on the right wall. Above the kitchen is a 25-foot by 18-foot living and dining area with two windows on the top wall and one on the right wall. On the top left of the living and dining area, a door leads to a 13-foot by 10-foot bedroom with a window on the top wall. At the bottom right of the bedroom, a door leads to a bath with a tub. On the left side of the bath, a door leads to a closet with a washer and dryer. The wall separating the bedroom and baths from the living and dining area is angled such that it is farther to the left at the top and farther to the right at the bottom. One column is in the bedroom and one is in the bath closet. Stairs in the entry area lead to the second level. At the top of the stairs is a 20-foot by 9-foot room with a refrigerator and sink. At the top left of the room is a closet. The top wall of the room is a window. At the bottom of the room, a door leads to a powder room with a shower with a door. To the right of the 20 by 9 room, double doors lead to an enormous L-shaped balcony. The balcony extends along the entire top wall of the second level and then extends further than the bottom wall along the right side. Stairs lead downward from the right section of the balcony to a lower level of the balcony at the corner. Stairs then lead upward from the lower level of the balcony to an upper level along the top wall of the apartment.
call for pricing

C17

3 Bed | 3 Bath | 1,788 SQ. FT.
C17 Floor Plan The two-level floor plan includes a kitchen, living area, three bedrooms, three baths, two additional rooms, and a terrace. The entry door opens into the left bottom side of the kitchen. To the left of the entry door is a closet with a door. The kitchen has an island. Above the kitchen is an 18 by 11 living area with two windows on the top wall. To the right of the kitchen, a short hall extends to the right. Above the hall, a door leads to a 12 by 12 bedroom with a window on the top wall. At the bottom of the bedroom, a door leads to a closet. Below the hall, a door leads to a bath with a tub. On the right side of the bath, double doors lead to a washer and dryer. At the top of the bath, a door leads to the same closet that was accessible from the bedroom. To the left of the kitchen, a door leads to an 18 by 14 bedroom with two windows on the left wall and one window on the top wall. On the right side of the room, a door leads to a bath with a tub. At the top of the bath, a door leads to a closet. A column is located in this closet, in the entry closet, and in the bedroom. Stairs in the living room lead to the second level. At the top of the stairs is an 11 by 9 room with a sink. A closet with double doors is on the bottom right side of the room. To the top right of the room is a 14 by 13 room with three windows and double doors leading to the terrace along the top wall. At the bottom right of this room, a door leads to a bath with a shower with a door. To the left of the 11 by 9 room, a door leads to an 18 by 14 L-shaped bedroom, with a window on the top wall and one on the right wall. A closet with a door is along the lower wall of the room. The terrace extends along the entire top wall of the second level. Stairs near the right side of the terrace lead down to a second level of the terrace. This level has a hot tub.
call for pricing

Online Leasing


Ready to find your new home today?

Apply Online

No floor plans found

Floor plans are artist’s rendering. All dimensions are approximate. Actual product and specifications may vary in dimension or detail. Not all features are available in every apartment. Prices and availability are subject to change. Please see a representative for details.